Le programme – Domaine du Parc à Belbeuf
Situé à Belbeuf, à quelques minutes seulement de Rouen, le Domaine du Parc propose un ensemble de terrains à bâtir dans un environnement naturel privilégié. Ce lotissement a été imaginé pour offrir un cadre de vie de qualité, où architecture résidentielle et paysage naturel s’harmonisent.
Le projet s’inscrit dans une démarche d’aménagement attentive à son environnement. L’organisation des terrains, des voiries et des espaces verts a été pensée afin de préserver l’équilibre naturel du site et d’offrir aux futurs habitants un cadre de vie calme et agréable.
Le Domaine du Parc s’adresse ainsi à celles et ceux qui souhaitent construire leur maison dans un quartier résidentiel à taille humaine, au cœur d’un environnement verdoyant tout en restant proche de la métropole rouennaise.




Un site d’exception
La conception du Domaine du Parc place la nature au centre du projet. L’aménagement paysager constitue l’élément structurant du lotissement et participe pleinement à la qualité du cadre de vie.
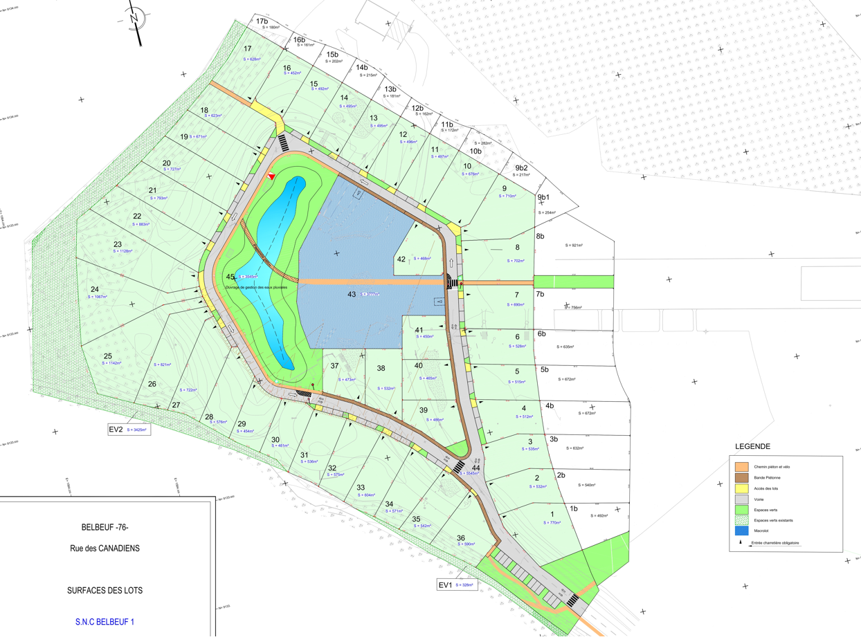
Au cœur du domaine, un vaste espace paysager composé d’un bassin central, de prairies naturelles et de plantations d’arbres crée un véritable lieu de promenade et de détente pour les futurs habitants. Des cheminements piétons permettent de traverser ces espaces et d’apprécier la richesse du paysage.
Les haies végétales, les alignements d’arbres et les espaces naturels contribuent à l’intégration harmonieuse du projet dans son environnement et participent à créer une ambiance résidentielle paisible.
La nature au centre du projet
Le projet du Domaine du Parc a été conçu dans le respect du paysage et de l’identité du site. L’organisation des lots, des voiries et des espaces paysagers permet de créer un ensemble cohérent où la nature occupe une place essentielle.
L’objectif de cet aménagement est d’offrir un cadre de vie agréable et durable, où les espaces naturels et les cheminements participent au bien-être des habitants. L’intégration des plantations et des espaces verts contribue à créer une atmosphère résidentielle harmonieuse.




Le mot de l’architecte
Sur la rive droite de la Seine, à seulement 10 km du centre de Rouen et à moins de 130 km de Paris, Belbeuf appartient à la communauté de l’agglomération rouennaise.
La commune profite d’un emplacement privilégié, à proximité immédiate de nombreuses infrastructures et services : transports en commun (bus),
établissements scolaires (écoles, collèges, lycées) ainsi que des commerces de proximité tels que boulangeries et boucheries.




Belbeuf, une commune où il fait bon vivre
Contact
Pour toute question, contactez-nous rapidement.
Coordonnées
Vous souhaitez être contacté(e)
+33 2 35 12 53 30